Address
304 North Cardinal St.
Dorchester Center, MA 02124
Work Hours
Monday to Friday: 7AM - 7PM
Weekend: 10AM - 5PM
Address
304 North Cardinal St.
Dorchester Center, MA 02124
Work Hours
Monday to Friday: 7AM - 7PM
Weekend: 10AM - 5PM

Most feng shui studio apartment advice sounds the same. Use a room divider. Hang a mirror. Add plants. Don’t let the bed face the door. Keep things tidy.
That advice covers surface-level arrangement. It doesn’t address a more specific question: which part of your studio is best for sleeping, which part is best for focused work, and which part should hold the kitchen? If you’ve ever searched “how to feng shui a studio apartment,” you’ve seen the same generic tips recycled across dozens of sites. None of them tell you which zone of your specific floor plan is auspicious and which isn’t. In a feng shui one room apartment, those three functions share the same space — and classical feng shui has a system for mapping where each one belongs.
The system is called Ba Zhai Nine Star (八宅九星). It divides any floor plan into 8 compass sectors, each with a different energy rating. Four are auspicious. Four are inauspicious. The ratings are determined by the building’s sitting direction — not by what you’ve placed in each zone. And they apply whether you’re in a 3,000 sq ft house or a 400 sq ft studio.
Ba Zhai is one of the oldest classical feng shui systems for interior layout. It assigns one of eight energy stars to each compass sector of a floor plan based on how the building sits. The eight stars split into two groups:
Auspicious stars:
Inauspicious stars:
In a multi-room apartment, the goal is simple: put the bed in an auspicious zone, put the kitchen stove in an inauspicious zone facing an auspicious direction, and arrange the rest accordingly. Each room tends to fall cleanly in one sector.
In a feng shui studio apartment layout, everything competes. Your bed, your desk, your kitchen, and your living area all share one room — but they still sit in different compass sectors. Move the bed six feet and it might land in a completely different energy zone.
For anyone working from home in a studio — and that’s a lot of studio apartment dwellers — there’s a second overlay that matters: Wenchang (文昌位).
Wenchang marks the optimal position for study and focused work. It’s derived from the building’s sitting direction (Residential Wenchang) and the person’s birth year (Personal Wenchang). Where those two overlap is the strongest desk position in the apartment.
Chinese classical sources explicitly address this for small spaces: if the apartment is too small for a separate study room, place the desk at the room’s Wenchang position. The system was designed to work at the zone level, not just the room level.
A feng shui home office analysis in a multi-room apartment asks “which room?” A feng shui studio apartment analysis asks “which zone within the room?”
Want to see which energy zone your bed sits in?
Our sample report runs Ba Zhai Nine Star on a real floor plan so you can see all 8 compass sectors color-coded by auspicious and inauspicious ratings.
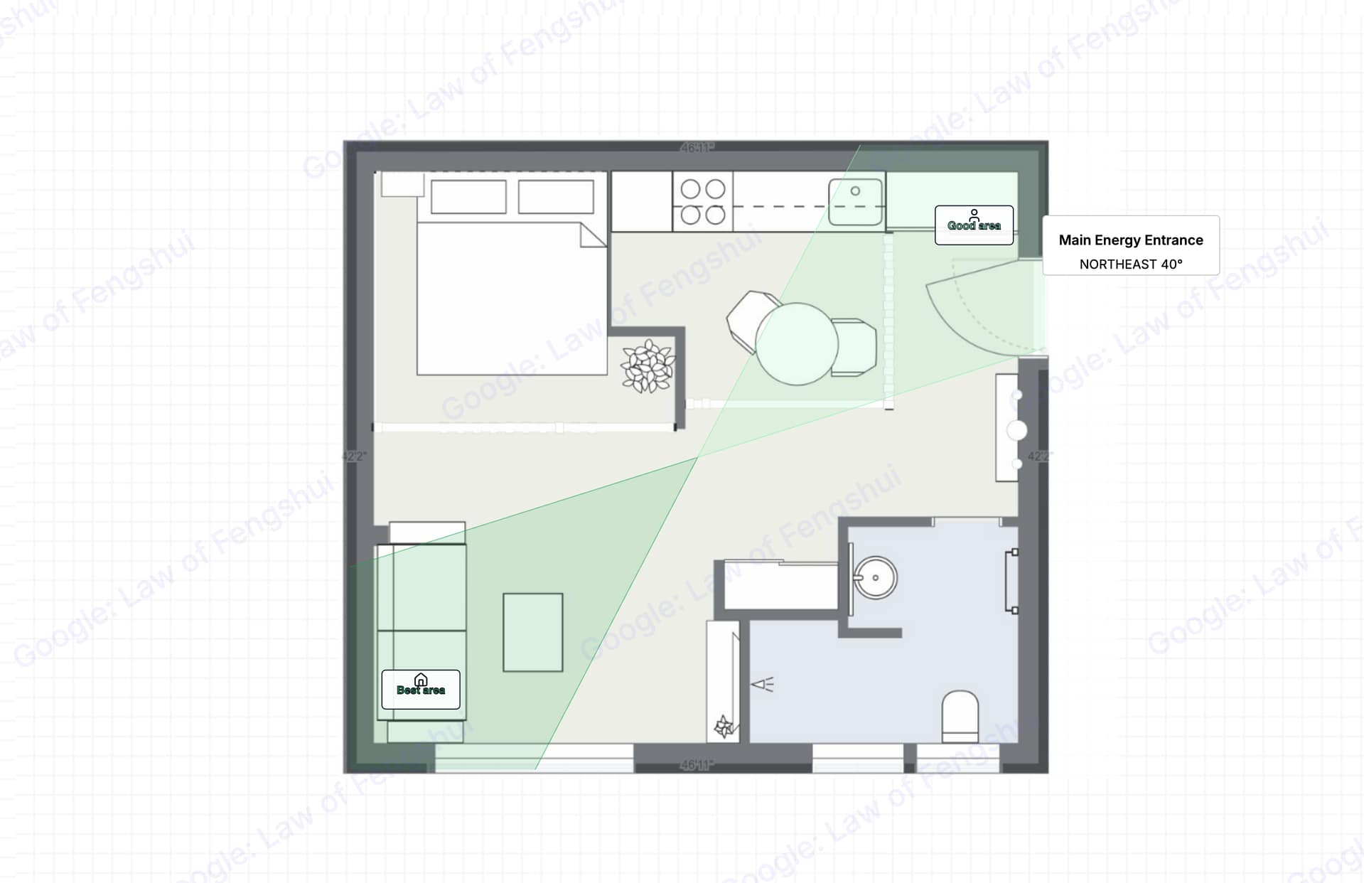
The studio is a 383 sq ft unit in La Jolla, California. One open main room with a bed area, a kitchen along the top wall, a small dining table, a sofa and TV setup, and a bathroom — the only enclosed room.
Priya is a UX designer who works remotely. She moved into the studio three years ago and arranged everything by what fit. Bed against the far wall, under the window. Desk squeezed behind the kitchen counter, facing the wall. Sofa in the open area near the entry. She followed the usual studio feng shui tips — added a plant, hung a small mirror, kept the space organized.
She still couldn’t focus during work hours and slept poorly despite a quiet neighborhood.

The results showed a clear pattern. Priya’s bed area — the upper-left quadrant of the studio — landed in the Liu Sha (六煞) zone. Liu Sha is the “Six Killings” star: Medium Inauspicious, associated with conflicts and disputes. Classical feng shui bedroom texts specifically warn against placing a bed in this sector.
The kitchen, running along the top wall of the studio, fell in the Jue Ming (絕命) zone — Supreme Inauspicious. That sounds bad. But here’s the thing: classical Ba Zhai feng shui kitchen rules say the stove should go in an inauspicious sector. The principle is called “sitting inauspicious, facing auspicious” (坐凶向吉). The kitchen being in Jue Ming is actually correct placement. Priya got this right by accident.
The auspicious sectors — Sheng Qi, Yan Nian, Tian Yi — were concentrated in the south and west portions of the studio. The living area where Priya placed her sofa was in the Wu Gui (五鬼) sector, which is Major Inauspicious.
The Wenchang overlay identified two zones for Priya’s desk:

Priya’s actual desk position — wedged behind the kitchen counter, facing the wall — wasn’t in either Wenchang zone.
Three things stood out:
1. The bed was in the wrong zone. Liu Sha is one of the sectors classical feng shui explicitly warns against for sleeping. Priya’s restless sleep had an energy-mapping explanation: she was sleeping in the “Six Killings” sector of her own apartment.
2. The desk was nowhere near the Wenchang position. Her desk, placed behind the kitchen by convenience, missed both the Residential and Personal Wenchang zones. The best desk zone — where both Wenchang positions overlapped — was on the opposite side of the studio, under the sofa.
3. The kitchen was the only thing placed correctly. The stove in Jue Ming follows the classical Ba Zhai principle of “sitting inauspicious, facing auspicious.” The irony: the only placement Priya got right was the one she never thought about. The kitchen came with the apartment. Everything she deliberately arranged — bed position, desk location — landed in the wrong zones.
Curious where the Wenchang study zone lands in your apartment?
Our sample report calculates your personal Wenchang position from your birth year and maps it onto an actual floor plan alongside the building’s Residential Wenchang.
If you live in a studio or feng shui small apartment and want to think about feng shui apartment layout at the zone level, here’s where to start:
The building’s sitting direction determines everything. Two studio apartments on the same block with different orientations will have completely different zone maps. Generic studio feng shui tips — “put the bed in the far corner” — can’t account for this. The zone map is specific to your building.
The bed gets priority for auspicious sectors. In a studio, you can’t put every function in its ideal zone. Classical feng shui prioritizes the bed: it goes in one of the four auspicious sectors. If you have to compromise somewhere, compromise on the sofa or dining area — not the bed.
The desk goes to the Wenchang position. If you work from home, the Wenchang overlay tells you where focused work energy peaks. This isn’t the same as the “best” Ba Zhai sector — it’s a separate system based on the building direction and your birth year. A feng shui desk placement in the Wenchang zone within a studio can make a real difference for concentration and output.
The kitchen in an inauspicious sector is fine — and preferred. Don’t panic if your kitchenette lands in a red zone. Classical Ba Zhai feng shui places the stove in inauspicious sectors deliberately. It’s a feature, not a problem.
Small moves, big shifts. In a 400 sq ft studio, the boundary between two energy zones might be a few feet apart. Swapping the bed and sofa positions, or moving a desk from one wall to another, can shift a piece of furniture from an inauspicious sector into an auspicious one. You don’t need to renovate. You need to know where the boundaries are.
Curious what 15+ classical feng shui systems reveal about a real home?
Our sample report shows every overlay on an actual floor plan so you can see the difference between classical analysis and generic advice.
Does feng shui work in a studio apartment? Yes. The Ba Zhai Nine Star system maps energy zones based on the building’s compass orientation, not the number of rooms. A studio has the same 8 sectors as any larger space — they just all share one room. This makes furniture placement more consequential, not less.
What’s the most important feng shui rule for a studio apartment? Prioritize the bed position. In classical feng shui bedroom layout, the sleeping area should be in an auspicious Ba Zhai sector. In a studio, this means checking which compass sector your bed occupies — not just which wall it’s against.
How do I find the Wenchang position in my studio? The Wenchang position depends on two things: the building’s sitting direction (Residential Wenchang, fixed for the property) and your birth year (Personal Wenchang, fixed for you). The ideal desk position is where both overlap. A classical feng shui analysis maps this onto your specific floor plan.
Can I do feng shui in a small apartment without a compass reading? Generic feng shui tips for small apartments — declutter, use dividers, add plants — don’t require compass data. But the zone-level analysis that shows which sector of your apartment is auspicious for sleep vs work vs cooking does require the building’s sitting direction. Without it, you’re arranging furniture without the map.
Is the feng shui zone map the same for every studio apartment? No. The feng shui studio apartment layout changes with the building’s sitting direction. A studio facing south produces a different Ba Zhai map than one facing west. And the Wenchang position adds another layer of personalization based on the resident’s birth year. Two people in the same studio will have different optimal desk positions.